2D / 3D AutoCAD Drawing & Model Design
Civil Engineering, Electrical, Mechanical etc.

Draw Architectural 2D / 3D AutoCAD Design
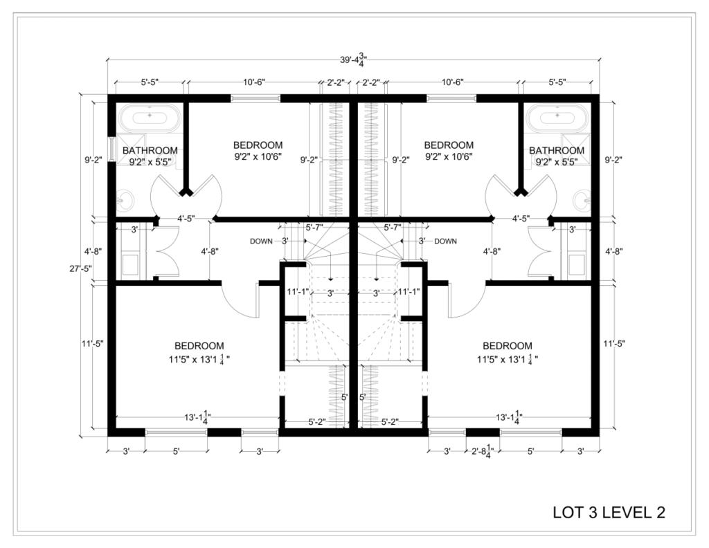
AutoCAD 2D / 3D Floor Plan, House Plan, Isometric View
Commercial Architecture Blueprints & Walkthrough
Machine Parts 3D Design
Shop/Mall/Showroom etc. AutoCAD Designs
3D Interior Detail Drawings with Textures, Lighting etc.
and Many More..

In the modern engineering and architectural landscapes, "2D and 3D AutoCAD design services" are essential for professionals looking to create detailed, accurate, and project-ready drawings. AutoCAD has become a cornerstone for translating concepts into workable designs, whether for civil engineering structures, mechanical components, or detailed architectural layouts. Our specialized services support a vast array of projects, ensuring every blueprint, floor plan, schematic, and 3D model meets high standards of precision, compliance, and visual clarity.

Comprehensive Service Overview

Our "2D/3D AutoCAD Drawing & Model Design" service spans across various disciplines:

  • Civil Engineering: From foundational blueprints to urban planning.
  • Mechanical Engineering: Component modeling, assembly diagrams, and industrial designs.
  • Electrical Engineering: Wiring layouts, panel configurations, and system schematics.
  • Architectural Design: Detailed layouts for residential, commercial, and industrial projects.

Why Choose Our AutoCAD Design Services?

Our team’s expertise is marked by decades of combined experience, state-of-the-art design tools, and a commitment to delivering industry-standard drawings. We ensure that:

  • All designs adhere to global standards such as ISO, ANSI, and ASME.
  • Clients receive customized, project-specific designs with thorough feedback loops.
  • High-quality work is delivered on time and at competitive rates.

In-Depth Service Offerings

➤ Civil Engineering AutoCAD Design 🡾
This segment covers extensive AutoCAD drawing and modeling services for civil projects, including:

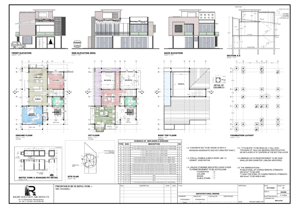
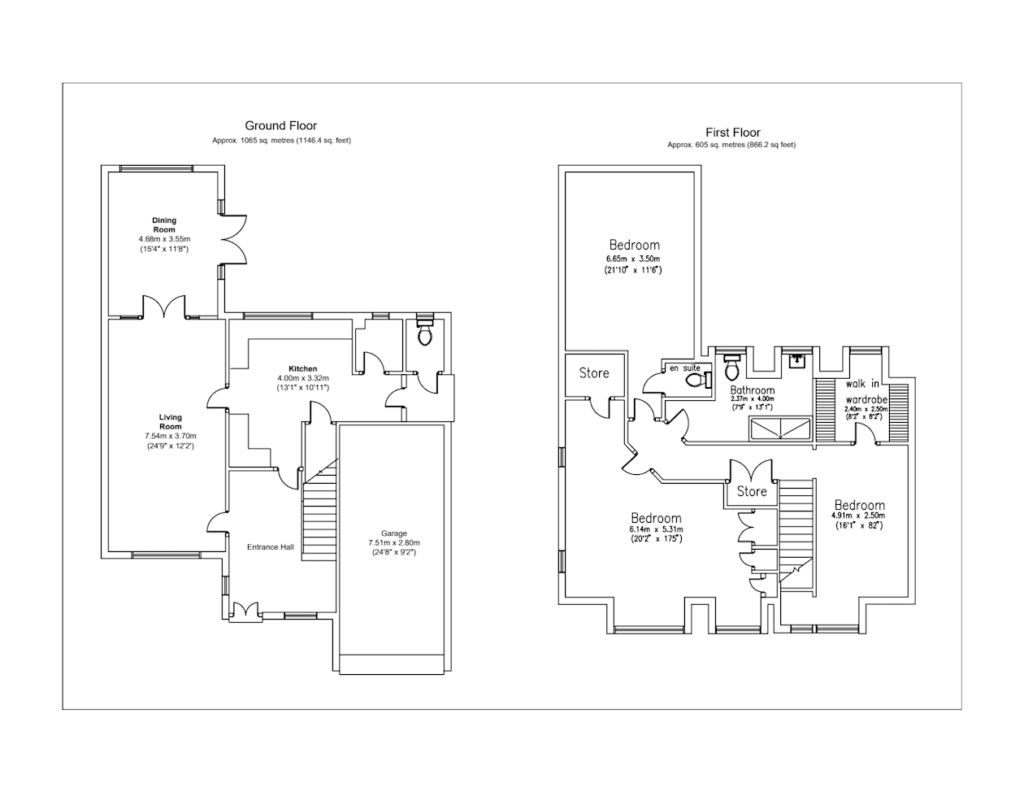
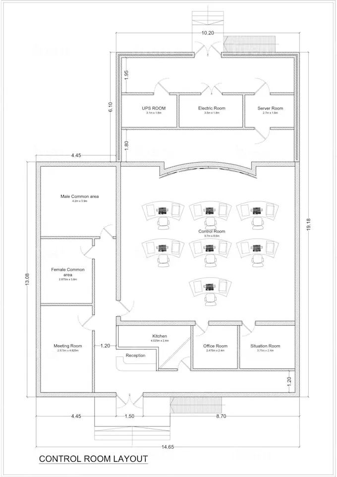
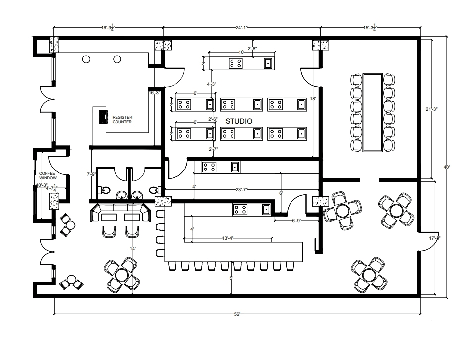
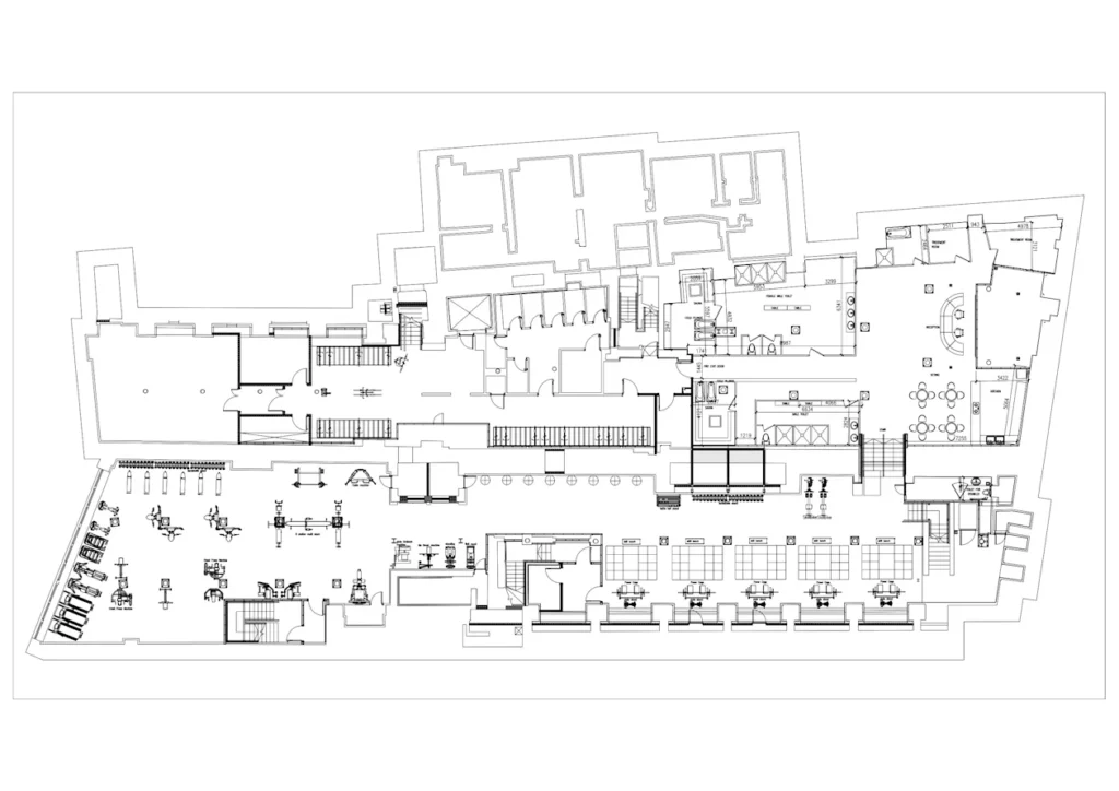
  • Floor Plans: 2D and 3D layouts for residential, commercial, and public buildings.
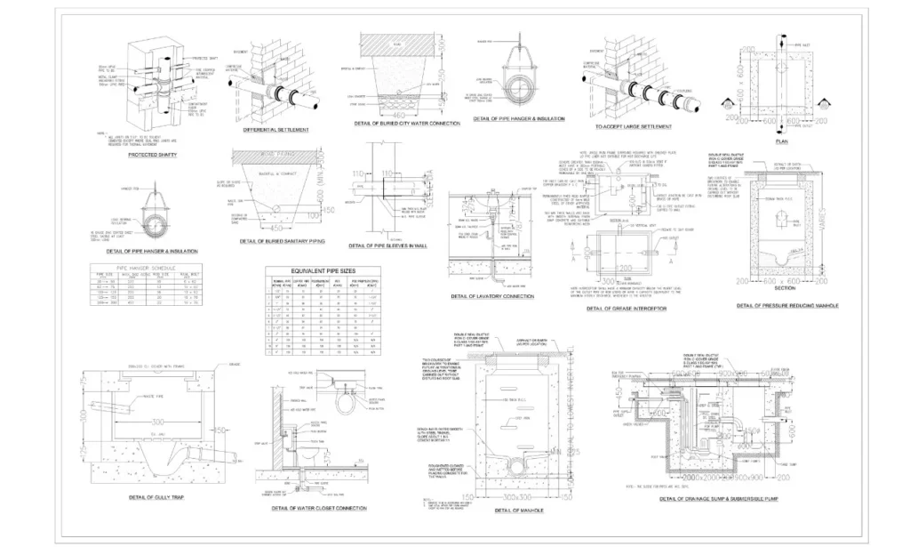
  • Structural Blueprints: Detailed designs of foundational elements, bridges, roadways, and public infrastructure.
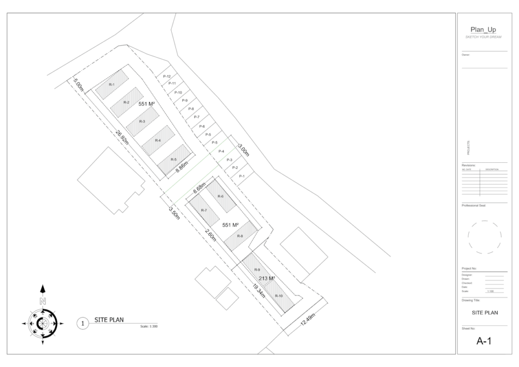
  • Topographical and Site Layouts: Drawings detailing terrain features, elevations, and drainage plans.
  • Landscaping Designs: Green spaces, drainage systems, and contour mapping.

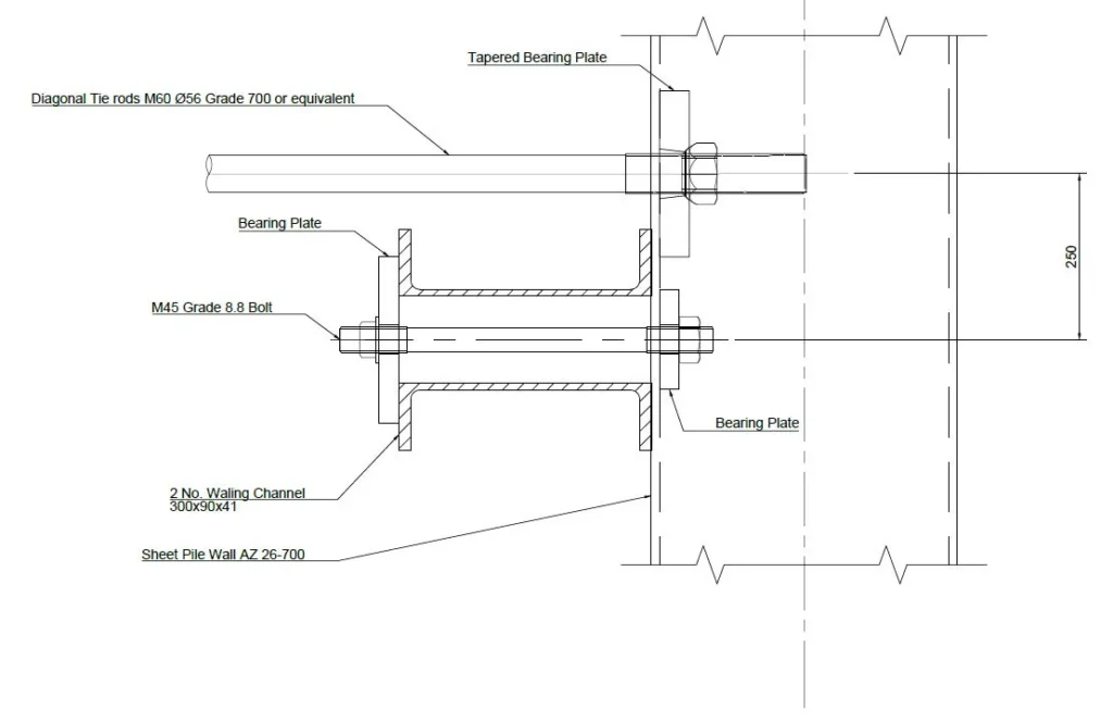
➤ Mechanical Engineering AutoCAD Design 🡾
Mechanical projects require designs that communicate manufacturing and assembly details precisely:

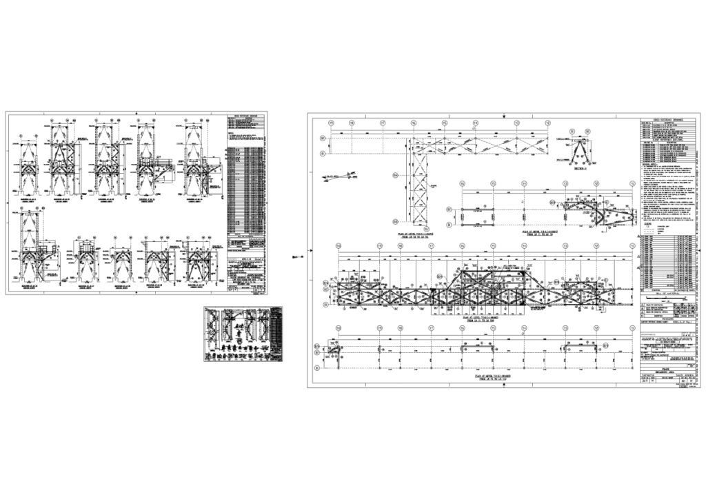
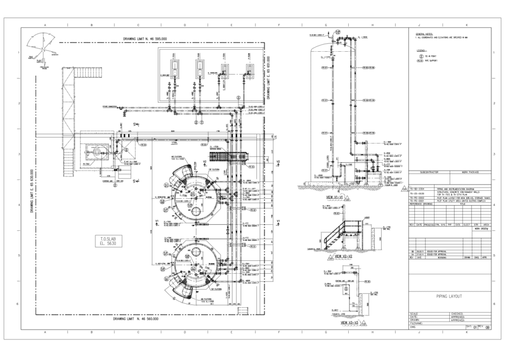
  • Component 3D Modeling: High-resolution models for industrial components across automotive, aerospace, and manufacturing sectors.
  • Assembly Diagrams: Exploded views and assembly guides for accurate, step-by-step assembly.
  • Production Drawings: Detailed dimensioned drawings with material specifications, ensuring manufacturing consistency.
  • Sheet Metal Design: Designs optimized for bending, flattening, and fabrication processes.

➤ Electrical Engineering AutoCAD Design 🡾
Electrical projects demand layouts that ensure safety, functionality, and regulatory compliance:

  • Wiring Schematics: Layouts for residential, commercial, and industrial electrical systems.
  • Panel Layouts and Control Circuits: Diagrams for control panels, switchboards, and circuit layouts.
  • Cable Routing and Piping: Efficient paths for cables and pipes within any building or structure.
  • Power Distribution and Grounding Diagrams: Design for effective power management and safety grounding.

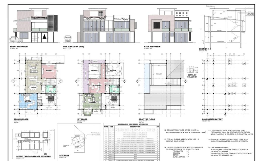
➤ Architectural AutoCAD Design 🡾
This service provides architects and designers with a complete suite of design solutions:

  • Residential and Commercial Floor Plans: From initial planning to detailed room layouts.
  • Elevations and Sections: Side views and sectional cuts for comprehensive understanding.
  • Interior Detailing: Lighting, fixtures, furniture layouts, and other interior elements.

➤ Draw Architectural AutoCAD Design 🡾
We offer complete architectural drawing services, from basic 2D layouts to intricate 3D designs:

  • Residential Blueprints: Designed for single-family homes, multi-unit buildings, and custom housing.
  • Commercial Floor Plans: Retail spaces, office layouts, and hotel plans, maximizing functionality and flow.

➤ AutoCAD 2D Floor Plan, House Plan, and Sketch-Up 🡾
Our floor planning services cater to precise 2D layouts that can transition into 3D Sketch-Up renderings:

  • House Plans: Tailored layouts considering regulations and personal preferences.
  • Sketch-Up Models: 3D visuals to offer clients an in-depth preview.

➤ Commercial Architecture Blueprints 🡾
Blueprints are tailored for high-traffic commercial spaces:

  • Shop and Showroom Design: Plans designed to optimize customer experience and brand identity.
  • Mall Layouts: Structural and aesthetic layouts with zones for foot traffic and retail placement.

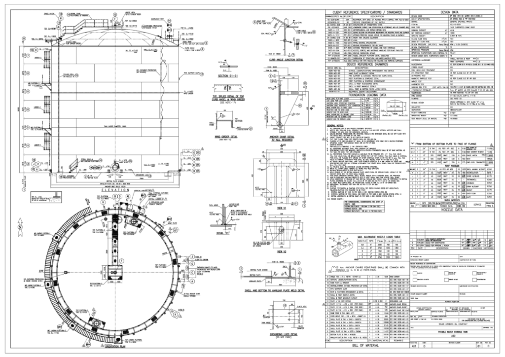
➤ Machine Parts 3D Design 🡾
Our team provides specialized design for machine components, ensuring seamless production and assembly:

  • Component Prototypes: CAD models for various industrial machinery, focused on precision.
  • Exploded View Models: To illustrate parts and assemblies for accurate construction.

➤ Shop/Mall/Showroom AutoCAD Designs 🡾
Detailed blueprints for commercial properties like shops, malls, and showrooms:

  • Space Optimization: Designs that enhance layout efficiency and align with brand visuals.
  • Traffic Flow and Aesthetics: Incorporating design elements for comfortable customer experiences.

➤ Interior Detail Drawings 🡾
Focused on creating practical, visually appealing spaces with specific details:

  • Wall Elevations: Detailing finishes, window placements, and structural elements.
  • Lighting and Furniture Layouts: Optimizing space for ergonomic and aesthetic design.

Our Process

Our design process is structured to ensure that every project receives careful attention at each stage:

1. Consultation and Requirement Gathering: Understanding client objectives.
2. Planning and Preliminary Design: Drafting initial sketches and gathering client feedback.
3. Design and Detailing: Completing detailed drawings in AutoCAD.
4. Review and Client Feedback: Allowing for adjustments to meet client expectations.
5. Final Delivery and Support: Delivering the final files and offering post-delivery support if needed.

Conclusion

"Our 2D/3D AutoCAD Drawing & Model Design service" is a comprehensive solution for professionals across civil, mechanical, electrical, and architectural fields. With a strong commitment to precision, compliance, and timeliness, we ensure that each project’s unique requirements are meticulously met.

Partnering with us means gaining access to a team dedicated to delivering detailed, high-quality designs that facilitate smooth project execution. From the initial consultation to the final delivery, our process emphasizes collaboration, ensuring that each drawing and model aligns with both industry standards and the client’s specific needs. Our attention to accuracy, customizability, and industry-standard practices ensures that clients receive designs ready for real-world application, reducing the risk of errors and increasing efficiency in implementation.

In choosing our AutoCAD services, clients receive more than just drawings; they gain a reliable partner dedicated to their project’s success. We look forward to helping you transform your concepts into actionable, professional designs that drive project success and innovation.

Contact us today and let us help you bring your engineering concepts to life with precision, creativity, and professionalism. Our team is ready to support your project with customized AutoCAD designs tailored to meet your unique needs. Reach out now to take the next step toward accurate, high-quality engineering solutions that drive your success!

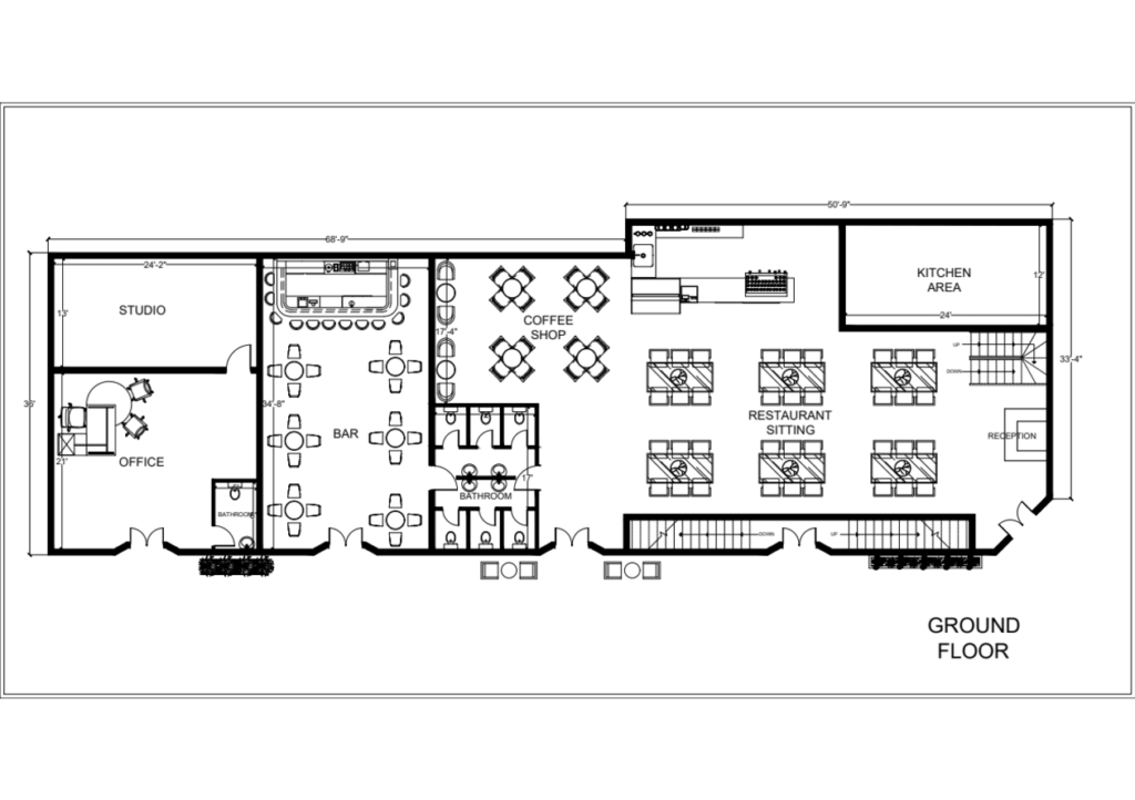
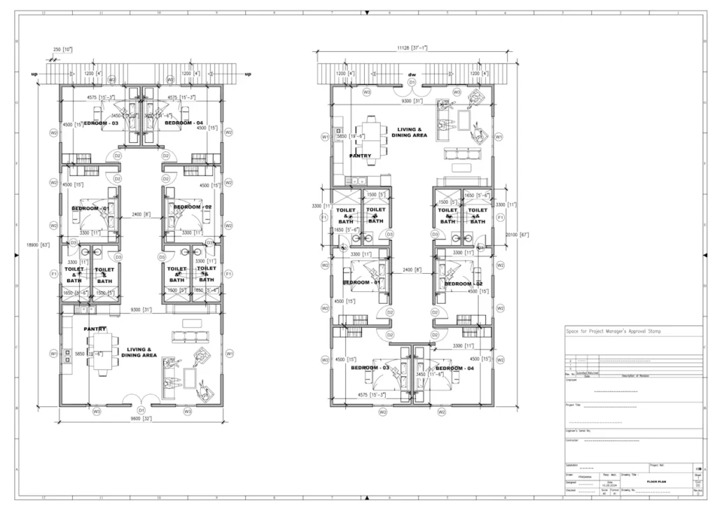
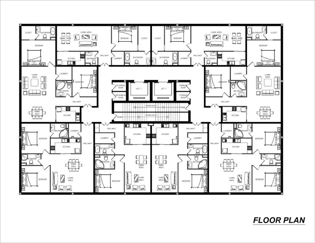
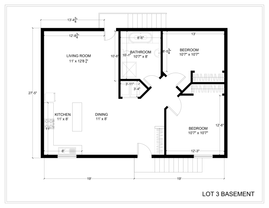
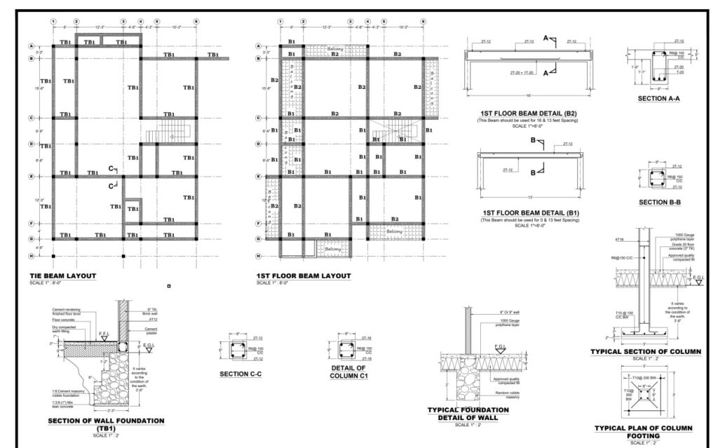
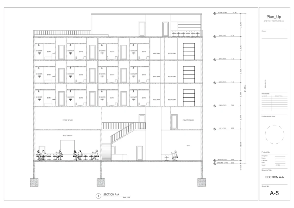
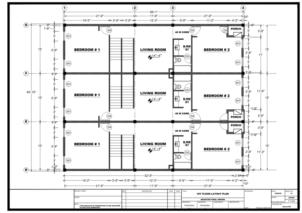
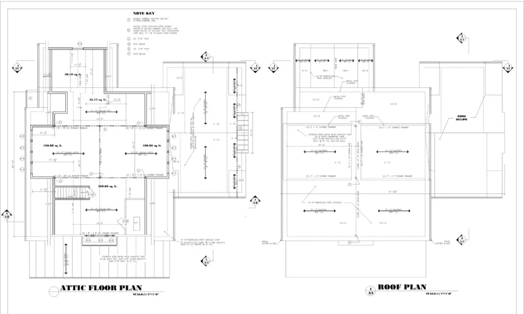
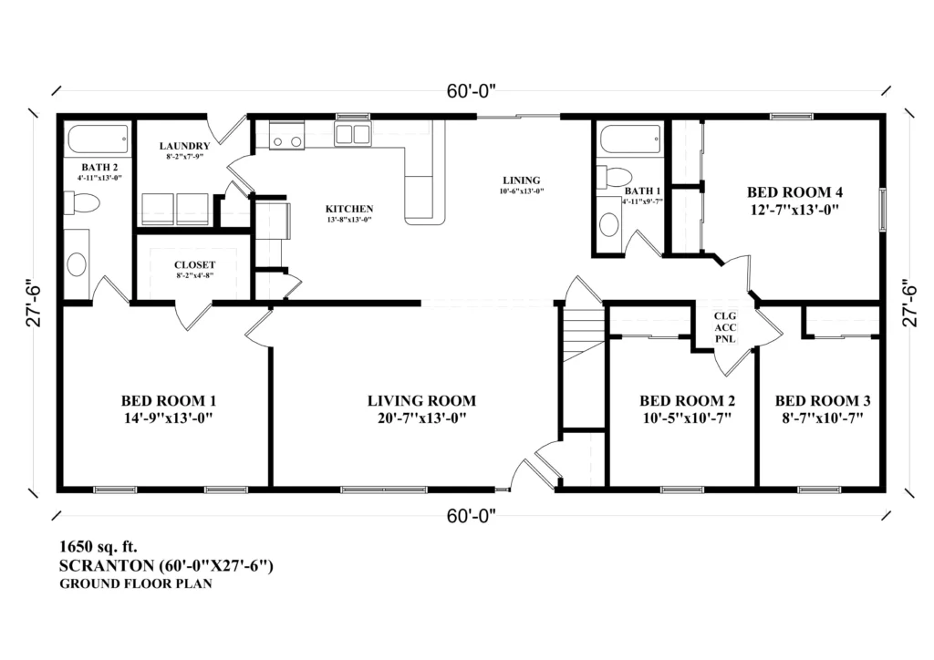
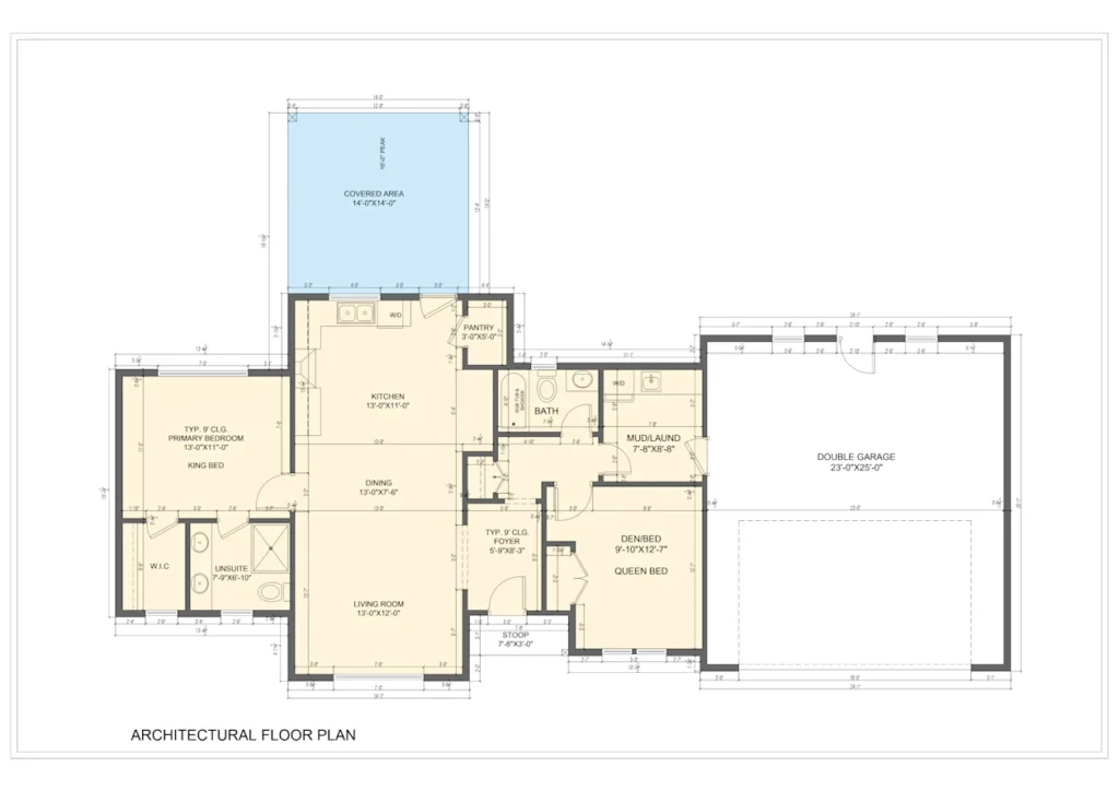
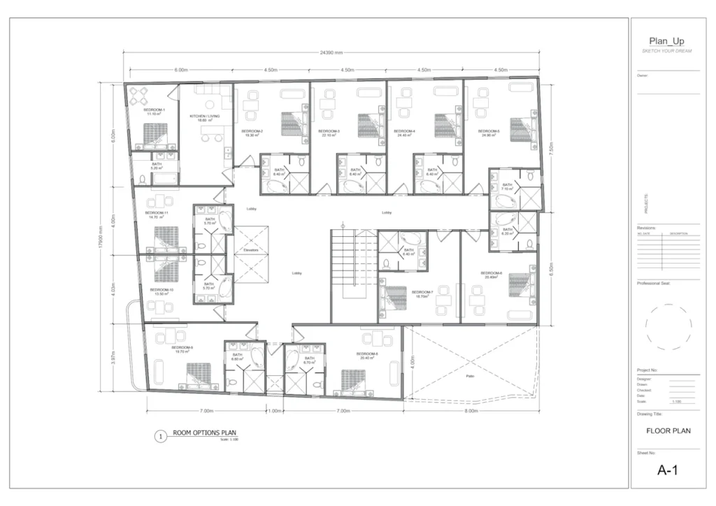
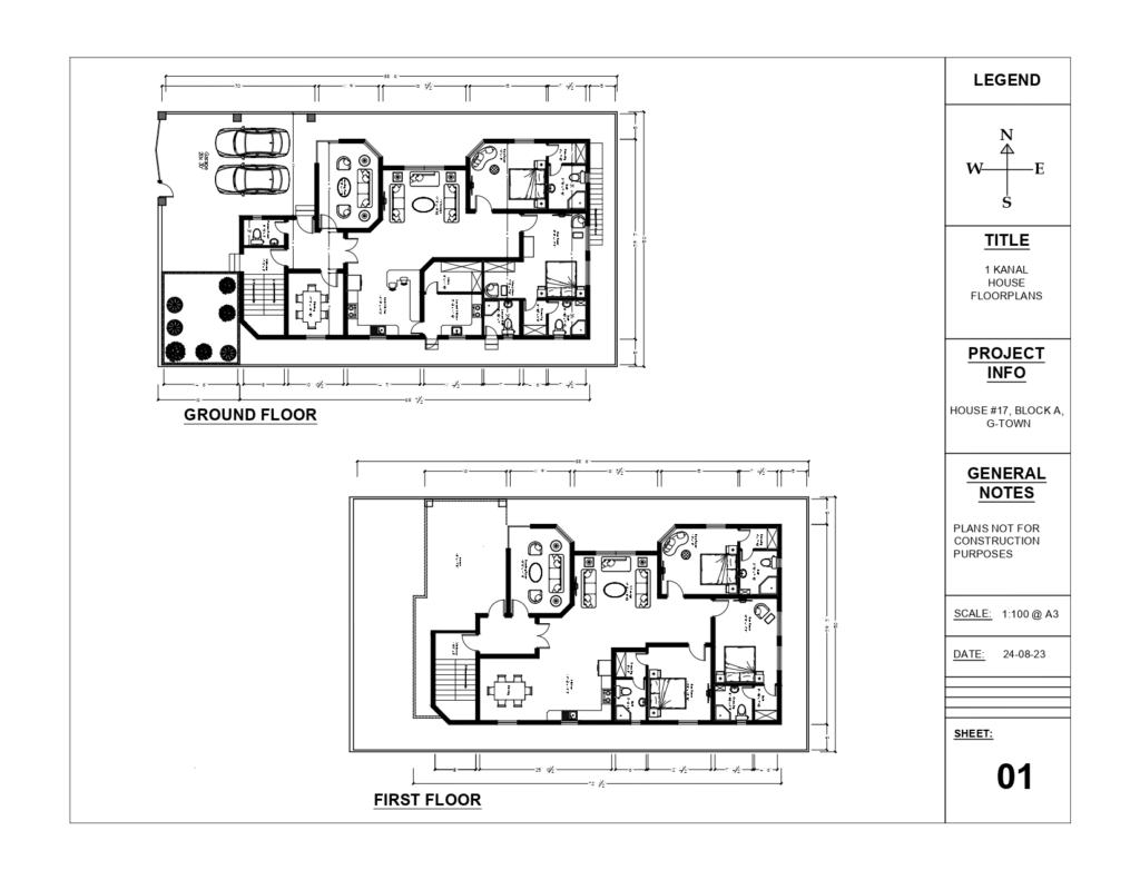
Our Portfolio & Sample Zone

Here is the Examples of Some of our Works, What we do at 2D / 3D Professional AutoCAD Design Service Like This

Benefits From This Service :

Certainly! Here are the Top 10 benefits customers can enjoy after using our “2D / 3D Professional AutoCAD Drawing & Model Design” Service :

  1. Precise, high-quality designs tailored to project requirements.
  2. Saves time with ready-to-implement AutoCAD models.
  3. Ensures compliance with industry standards and regulations.
  4. Enhances project efficiency through detailed, accurate layouts.
  5. Offers cost-effective solutions for complex engineering projects.
  6. Provides both 2D and 3D visualizations for better understanding.
  7. Supports multiple fields: civil, mechanical, and electrical.
  8. Quick turnaround time without compromising on quality.
  9. Customizable designs meet specific client and project needs.
  10. Expert support available for any design modifications needed.

Our Features & Pricing

Please Read : Rule No. 01

*** PLEASE NOTE : The Prices Shown Below are the Starting Price, The Price is NOT FIXED. All Prices are Nigotiable.
Price May Increase / Decrease as Per Customers Features Requirements.

Please Read : Rule No. 02

Payment Process System

*** PLEASE NOTE : After Successfull Book Service, You Need to Pay Some Advance Amount to Start the Work.
We Have 3 Types of Payment Ratio.

30% Advance Payment - 40% Middle of the Work - 30% Project Final Delivery Time
60% Advance Payment - 40% Project Final Delivery Time [ Mostly Used ]
85% Advance Payment - 15% Project Final Delivery Time

High Advance Payment Means Overseas Team Work.
Don't Worry !! We Have Money Back Policy Available. Please Read Below.

Please Read : Rule No. 03

100% Money Back Policy

*** PLEASE NOTE : We Have Our Own Money Back Policy.
If We Take Any Project & Then Unfortunately Not Complete the Work. In That Case, We Return
the Full Money as Soon as Possible.
Only We Take Some Service Charge Amount for Team Hard Work

So, Don't Worry !!
We Will Take Order, Only When We Will Do & Complete that Work.

Please Read The Refund / Money Back Policy for Better Understanding of Our Rules.
Becuase Customer Satisfaction is Our Top Priority.

BASIC PLAN

$53

Drawing Area up to 50m2

100% Satisfaction Guaranteed

*** Note: If You Have Any Doubt,
Please Contact us through Our WhatsApp

STANDARD PLAN

$93

Drawing Area Up to 200m2

100% Satisfaction Guaranteed

*** Note: If You Have Any Doubt,
Please Contact us through Our WhatsApp

PREMIUM PLAN

$162

Drawing Area up to 350m2

100% Satisfaction Guaranteed

*** Note: If You Have Any Doubt,
Please Contact us through Our WhatsApp

BASIC PLAN

$54

Area up to 250 - 600 sq. ft.

100% Satisfaction Guaranteed

*** Note: If You Have Any Doubt,
Please Contact us through Our WhatsApp

STANDARD PLAN

$79

Area Up to 1600 - 2500 sq. ft.

100% Satisfaction Guaranteed

*** Note: If You Have Any Doubt,
Please Contact us through Our WhatsApp

PREMIUM PLAN

$159

Area Up to 4000 - 5000 Sq. Ft.

100% Satisfaction Guaranteed

*** Note: If You Have Any Doubt,
Please Contact us through Our WhatsApp

BASIC PLAN

$46

2D Plan of a Building

100% Satisfaction Guaranteed

*** Note: If You Have Any Doubt,
Please Contact us through Our WhatsApp

STANDARD PLAN

$535

2D Plan & 3D View of Standard Size Building/Structures

100% Satisfaction Guaranteed

*** Note: If You Have Any Doubt,
Please Contact us through Our WhatsApp

PREMIUM PLAN

$1629

2D & 3D View of Complex Structures

100% Satisfaction Guaranteed

*** Note: If You Have Any Doubt,
Please Contact us through Our WhatsApp

BASIC PLAN

$72

2D Object Drawing

100% Satisfaction Guaranteed

*** Note: If You Have Any Doubt,
Please Contact us through Our WhatsApp

STANDARD PLAN

$92

2D Single Floor Drawing Plan

100% Satisfaction Guaranteed

*** Note: If You Have Any Doubt,
Please Contact us through Our WhatsApp

PREMIUM PLAN

$125

2D Double Floor Drawing Plan

100% Satisfaction Guaranteed

*** Note: If You Have Any Doubt,
Please Contact us through Our WhatsApp

BASIC PLAN

$81

Area up to 500 sq. ft.

100% Satisfaction Guaranteed

*** Note: If You Have Any Doubt,
Please Contact us through Our WhatsApp

STANDARD PLAN

$131

Area up to 1000 sq. ft.

100% Satisfaction Guaranteed

*** Note: If You Have Any Doubt,
Please Contact us through Our WhatsApp

PREMIUM PLAN

$208

Area up to 2000 sq. ft.

100% Satisfaction Guaranteed

*** Note: If You Have Any Doubt,
Please Contact us through Our WhatsApp

BASIC PLAN

$199

3D Model of 1 Room

100% Satisfaction Guaranteed

*** Note: If You Have Any Doubt,
Please Contact us through Our WhatsApp

STANDARD PLAN

$252

3D Model with Rendering

100% Satisfaction Guaranteed

*** Note: If You Have Any Doubt,
Please Contact us through Our WhatsApp

PREMIUM PLAN

$423

High Detailed 3D Model +

100% Satisfaction Guaranteed

*** Note: If You Have Any Doubt,
Please Contact us through Our WhatsApp

BASIC PLAN

$53

(1) 3D Rendering

100% Satisfaction Guaranteed

*** Note: If You Have Any Doubt,
Please Contact us through Our WhatsApp

STANDARD PLAN

$99

(2) 3D Renderings

100% Satisfaction Guaranteed

*** Note: If You Have Any Doubt,
Please Contact us through Our WhatsApp

PREMIUM PLAN

$319

(3) 3D Renderings

100% Satisfaction Guaranteed

*** Note: If You Have Any Doubt,
Please Contact us through Our WhatsApp

Project Delivery Time : 2 - 10 Days

Frequently Asked Questions (Project / Service Related)

Our AutoCAD services span a wide range of engineering fields, including civil, electrical, mechanical, and architectural engineering. Whether your project involves designing residential floor plans, creating complex electrical system layouts, modeling mechanical components, or drafting entire urban planning blueprints, we adapt our services to meet each sector’s needs. Our expertise ensures that each project is executed with high precision, tailored details, and industry-standard compliance, giving you designs that are both functional and project-ready.
Our team comprises certified AutoCAD experts and engineers with years of experience handling diverse projects across civil, mechanical, electrical, and architectural sectors. With an in-depth understanding of both fundamental and advanced AutoCAD features, our designers bring knowledge and expertise to every project. Our professionals stay up-to-date on industry trends and innovations, so whether your project requires intricate electrical schematics or 3D mechanical models, we ensure high-quality, industry-aligned output.
Absolutely, we offer comprehensive 2D and 3D AutoCAD services. For clients who need quick floor plans, technical drawings, or construction details, our 2D designs provide clear and accurate visuals. Our 3D AutoCAD services, on the other hand, are ideal for projects requiring in-depth modeling and visualization, such as component assembly, building layouts, or detailed mechanical designs. By offering both, we cater to the full range of visual and functional requirements.
Yes, we design all projects in alignment with relevant industry standards, including ISO = International Organization for Standardization, ANSI = American National Standards Institute, ASME = American Society of Mechanical Engineers, and other regional regulations. Our commitment to standardization ensures that each design is not only accurate but also adheres to the industry’s quality, safety, and functional requirements. This compliance is particularly beneficial for engineering projects that require regulatory approvals or third-party reviews, as our designs meet every necessary standard from the outset.
We provide the completed designs in industry-standard formats such as DWG, DXF, and PDF. DWG and DXF formats allow for further edits in AutoCAD or other CAD software, while PDF files offer clear, readable copies for reference and presentations. If you require additional formats, we can accommodate those to ensure seamless integration into your workflow.
Project timelines vary according to the complexity, scope, and specific requirements. However, our team prides itself on meeting deadlines without compromising quality. For simpler 2D floor plans, completion is typically swift, whereas complex 3D modeling projects may require more time for meticulous detailing and revisions. We provide a timeline estimate at the beginning and communicate transparently throughout the project.
Yes, customization is central to our service. We adapt every detail of your design to meet your exact specifications—whether that involves unique dimensions, material types, environmental constraints, or other specialized requirements. By customizing each design, we ensure it’s a perfect fit for the project’s functional and aesthetic needs.
We encourage client feedback throughout our design process, especially during the review phase. Revisions are available to ensure each design meets your expectations and project requirements fully. Once final approval is given, we provide additional support if any adjustments are needed during implementation, ensuring you have a design that’s truly ready for real-world application.
Our AutoCAD services cover multiple industries, including civil, mechanical, electrical, and architectural engineering. From urban planning and construction layouts in civil engineering to complex electrical system diagrams and intricate mechanical component models, we bring sector-specific expertise and precise design solutions to each field, ensuring high relevance and compliance across industries.
Yes, we specialize in creating detailed 2D floor plans and building layouts that cater to residential, commercial, and industrial projects. Our floor plans are carefully drafted to include necessary architectural elements such as walls, doors, windows, and dimensions, providing a comprehensive view of the layout. We also ensure all plans meet architectural standards, making them ideal for contractors, builders, and stakeholders who need a clear visualization of the project.
We offer precise 2D and 3D assembly diagrams for complex mechanical structures. Each assembly diagram includes exploded views, labeling, and detailed specifications for each part, providing clarity for the assembly or manufacturing process. These diagrams are crucial for understanding part alignment, fit, and function, making them valuable for industries like manufacturing, automotive, and aerospace.
Yes, our civil engineering AutoCAD services include roadway design, drainage systems, urban planning, and structural layouts. We incorporate elements such as topography, traffic flow, material specifications, and environmental considerations, ensuring each design meets safety and functional standards. Our approach provides a strong foundation for infrastructure projects that need accurate, compliant designs.
Our electrical engineering AutoCAD services include complex electrical schematics, power distribution layouts, and wiring diagrams for structures of all sizes. We consider factors such as power load, voltage, circuit complexity, and space constraints. This ensures your electrical designs are practical, safe, and fully compliant, making them suitable for commercial, residential, and industrial buildings.
We provide post-delivery support for clients who may need updates or adjustments. Our team is available to implement revisions and make updates if required, ensuring that your project remains aligned with changing requirements or additional specifications.
Our mechanical component modeling services provide highly detailed 3D representations for parts or entire assemblies. We focus on creating accurate dimensions, material specifications, and tolerance levels, essential for manufacturing and quality assurance. Each model is fully compatible with industry standards, enabling seamless handover to production teams or other stakeholders.
We provide site layouts, topographic maps, and large-scale civil project plans, which are essential for visualizing terrain, structures, access points, and natural features. Our detailed site layouts allow project managers and urban planners to assess land use effectively and are particularly useful for government projects, infrastructure development, and urban planning.
Yes, we create accurate panel layouts, control circuit diagrams, and instrumentation schematics for electrical systems. These layouts are essential for organizing electrical components efficiently, ensuring safety, and aiding in troubleshooting, making them invaluable for engineers and maintenance teams.
We follow a structured, multi-phase process—consultation, preliminary design, detailed drafting, review, and final delivery—ensuring every detail is checked for accuracy. At each stage, we maintain high standards of quality and precision, integrating client feedback to create a flawless end product.
Our civil engineering services extend to urban and landscape planning, including green space layouts, drainage systems, and contour mapping. These designs cater to municipalities, developers, and architects involved in large-scale planning, ensuring sustainable and efficient land use that aligns with urban development needs.
We prioritize adherence to ISO, ANSI, ASME, and other industry standards, which guide every aspect of our design process. Compliance with these standards ensures that each project is accurate, safe, and ready for implementation, reducing the need for extensive revisions and supporting a smooth workflow for all stakeholders.
Our structural designs account for materials such as concrete, steel, wood, and composites, aligning with engineering best practices. Material considerations are essential, as they impact load capacity, flexibility, safety, and environmental conditions. By factoring in specific material properties, we provide designs that are both durable and optimized for practical implementation in real-world settings.
Yes, we offer detailed interior drawings, including floor layouts, furniture plans, electrical layouts, and custom cabinetry designs. These drawings are valuable for architects, interior designers, and contractors who need precise, visually informative plans to guide the construction and furnishing of spaces. Our interior detail drawings ensure the execution of cohesive, aesthetic, and functional spaces.
We use an organized layer management system in AutoCAD, where each layer represents a unique aspect of the design, such as structural elements, electrical components, or plumbing systems. This multi-layered approach simplifies the navigation of complex designs and ensures that different engineering disciplines can easily collaborate on the same project, without interference between design elements.
Absolutely, we provide 3D renderings or visualizations to give you a realistic view of the final design before approval. 3D views allow stakeholders to examine the project from different angles, make informed decisions, and request modifications if necessary. This ensures the final design aligns closely with your vision and project requirements.
Our designs are meticulously detailed, capturing every component and dimension necessary for accurate execution. For 2D designs, you can expect high-precision dimensions, annotations, and clear labeling, while 3D models include depth, material properties, and perspective views. This level of detail provides clarity for engineers, contractors, and manufacturers, minimizing guesswork and errors in project execution.
Yes, our designs can be made compatible with Building Information Modeling (BIM) platforms, especially for large projects that require collaborative planning and data integration. BIM compatibility allows stakeholders to access critical project data in one place, enhancing coordination, reducing redundancy, and supporting a seamless workflow from planning through to execution.
Absolutely, we provide shop drawings tailored for manufacturing, which include precise measurements, material specifications, and part details. These drawings are essential for ensuring that parts are fabricated accurately and according to design specifications, saving time, reducing errors, and enhancing the quality of the final manufactured product.
We use industry-standard dimensioning techniques to ensure all measurements are clearly defined and easy to interpret. Our dimensioning approach includes setting tolerances, using clear annotation styles, and highlighting critical dimensions. This precision facilitates effective project implementation, as all measurements are readily available and understandable for builders, engineers, and stakeholders.
Yes, we design detailed electrical control panel layouts, which include panel dimensions, wiring schematics, component placement, and labeling. These designs are essential for industrial setups, where efficient control panel layouts are needed for safe, organized, and easy-to-maintain electrical systems.
For large-scale construction projects, we focus on modular designs, which allow easy scaling, phased implementation, and clear site management. We consider factors such as spatial constraints, load distribution, and material compatibility, creating designs that are feasible, sustainable, and aligned with the project’s goals, budget, and timeline.
Our commitment to precision, customization, and compliance with industry standards sets our AutoCAD design services apart. We prioritize accuracy, detail, and functionality in every project, tailoring our services to meet each client’s unique requirements. Our multi-disciplinary expertise ensures that our designs not only meet technical specifications but also add value to the project, supporting both short-term success and long-term project sustainability.

Frequently Asked Questions (Payment Related)

We accept various payment methods, including Credit / Debit Cards, PayPal, Bank Transfers, and Online Payment Gateways, for your convenience.
Depending on the project scope, an initial deposit or partial payment may be required to commence the Project campaign. Or May Be We Need Sometime the Full Payment For Too Much Work Pressure.
The final payment is typically due upon completion of the Project campaign and delivery of the agreed-upon Service. Sometimes, We May Need the Full Payment to Start the Work between Overseas Team Work.
No, we maintain transparency in our pricing, and any additional fees will be communicated upfront before starting the campaign.
Absolutely. We prioritize the security of your payment information and use encrypted payment gateways to ensure its safety.
Client satisfaction is our priority. We'll work closely with you to address any concerns and make necessary adjustments.
Yes / Maybe No, we're flexible and open to discussing modifications to the payment schedule or terms to accommodate your needs. But Sometimes, Modification is Not Allowed for Some Services. Please WhatsApp For More Discussion.
If you miss a payment deadline, please notify us as soon as possible to discuss alternative arrangements. We aim to find a solution that works for both parties.
Yes, we'll provide you with an invoice and proof of payment upon request or as part of our standard invoicing process.
While we strive for client satisfaction, refunds are considered on a case-by-case basis, depending on our refund policy and circumstances and our refund policy.
error: Content is protected !!